Safety features beyond ISO containers for green energy initiatives
Renewable energy storage systems (ESS) have quickly become a high-priority investment for utility companies. These storage systems typically include rechargeable batteries which allow energy to be saved and stored while the sun is shining or the wind is blowing.
Later, energy storage systems are called upon to deliver electricity to consumers during peak demand hours or during power outages to help balance and support the overall electrical grid. Robinson partners with utility companies to design, fabricate, and assemble reliable energy storage systems.
Another application, a microgrid, has become a priority for utility companies as well. A microgrid can disconnect from a traditional grid and operate independently as a stand-alone energy source. Oftentimes, diesel gensets and battery energy storage systems (BESS) are combined in microgrid applications.
Robinson brings 30+ years of genset packaging experience to the power generation industry. Customers working with Robinson can source packaged gensets and battery energy storage systems with a single supplier. These complex systems can be built together, put through FAT together, shipped together and commissioned together. A simplified sourcing process for a complex supply chain.
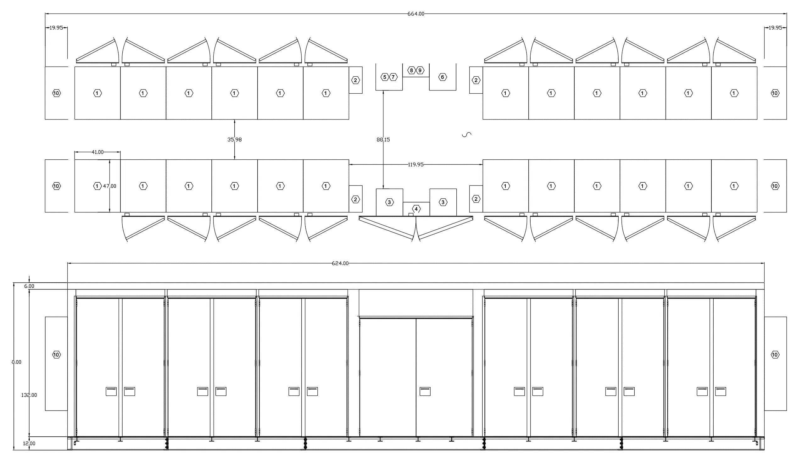
Robinson’s energy storage systems are more than just steel boxes
Customers can benefit from Robinson’s wide-ranging fabrication capabilities with energy storage systems. Our expertise and history of providing packaged gensets have created a backbone for process, procedures and skillsets needed for energy storage system applications. Whether you require a BESS application, ASME stainless tank fabrication or a fully skidded modular process system, Robinson has the experience to support your complex fabrications.
Energy storage systems are more than just metal boxes or ISO containers placed on the grid. We know your field crew needs an efficient installation process and a safe environment during testing and operation. Our unique designs include HVAC cooling parameters for batteries, attention to fire safety details, enclosure accessibility and optimized footprints for the power you need.
The level of quality we build into an energy storage system enclosure helps you maximize your investment and minimize the possibility of failure. Let our design team develop custom energy storage systems for your next project.
About Robinson, Inc.
Robinson, Inc., is a single-source metal solutions provider based in De Pere, Wisconsin. Robinson offers manufacturing and design expertise in fabrication and machine; pipe and vessel; custom enclosures; product handling; and portable fuel solutions. The company employs more than 500 people at three locations comprising 500,000 square feet of manufacturing space.
For more information about Robinson’s capabilities or to request a quote, please call (920) 494-7411, or visit https://www.robinsoninc.com.

